Chiều cao tối đa nhà phố theo quy định: Gia chủ cần biết trước khi xây nhà
Khi xây dựng nhà phố, ngoài mật độ và khoảng lùi, chiều cao công trình là yếu tố bắt buộc phải tuân thủ theo quy định pháp luật. Không ít gia chủ do thiếu thông tin về chiều cao tối đa nhà phố theo quy định đã xây vượt tầng cho phép, dẫn đến bị xử phạt, buộc tháo dỡ hoặc không được hoàn công.
Bài viết dưới đây sẽ giúp bạn hiểu rõ quy định về chiều cao tối đa nhà phố, cách xác định số tầng được phép xây và những lưu ý quan trọng khi áp dụng.
Chiều cao tối đa nhà phố theo quy định là gì?

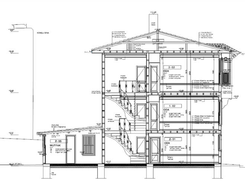
Chiều cao tối đa nhà phố là mức chiều cao lớn nhất của công trình được phép xây dựng, tính từ cốt vỉa hè hoàn thiện đến điểm cao nhất của mái hoặc sàn mái, theo quy định của pháp luật xây dựng và quy hoạch đô thị.
Quy định này nhằm:
-
Đảm bảo an toàn kết cấu
-
Đồng bộ kiến trúc đô thị
-
Tránh che khuất tầm nhìn, ảnh hưởng hạ tầng
-
Hạn chế tranh chấp với nhà liền kề
Căn cứ pháp lý quy định chiều cao tối đa nhà phố
Chiều cao nhà phố được quy định dựa trên:
-
Luật Xây dựng hiện hành
-
Quy chuẩn kỹ thuật quốc gia về quy hoạch xây dựng
-
Quy định quản lý kiến trúc của địa phương
-
Giấy phép xây dựng được cấp
👉 Mỗi địa phương có thể quy định khác nhau về chiều cao nhà phố.
Chiều cao tối đa nhà phố theo lộ giới đường
Một trong những yếu tố quyết định chiều cao nhà phố là lộ giới đường trước nhà.
Thông thường:
-
Đường nhỏ, hẻm: số tầng và chiều cao bị hạn chế
-
Đường lớn: được phép xây cao hơn
-
Khu đô thị mới: tuân thủ quy hoạch chi tiết
👉 Chiều cao tối đa được ghi rõ trong giấy phép xây dựng.
Quy định chiều cao nhà phố theo số tầng

Chiều cao tối đa nhà phố còn phụ thuộc vào:
-
Số tầng được phép xây
-
Chiều cao mỗi tầng theo tiêu chuẩn kỹ thuật
-
Hình thức mái (mái bằng, mái dốc)
Gia chủ không được tự ý tăng chiều cao tầng để vượt số tầng cho phép.
Chiều cao tối đa nhà phố và quy định về tầng lửng, tum
Một số điểm cần lưu ý:
-
Tầng lửng chỉ được phép xây khi đủ điều kiện
-
Tum thang, sân thượng có giới hạn chiều cao riêng
-
Không được biến tum thành tầng ở
Vi phạm các quy định này cũng được xem là xây dựng sai phép.
Những lỗi thường gặp khi vi phạm chiều cao nhà phố
-
Xây vượt số tầng cho phép
-
Nâng chiều cao mỗi tầng vượt tiêu chuẩn
-
Cơi nới mái, tum, sân thượng sai quy định
-
Thay đổi thiết kế trong quá trình thi công
Các lỗi này có thể khiến công trình bị xử phạt và buộc tháo dỡ phần vi phạm.
Mức xử phạt khi vi phạm chiều cao tối đa nhà phố
Theo quy định:
-
Phạt tiền hành chính
-
Buộc tháo dỡ phần xây vượt
-
Ngưng thi công
-
Không được nghiệm thu hoàn công
Mức phạt tùy thuộc vào mức độ vi phạm và quy mô công trình.
Lưu ý quan trọng khi xây dựng nhà phố theo chiều cao quy định
-
Kiểm tra quy hoạch trước khi thiết kế
-
Xin giấy phép xây dựng đầy đủ
-
Không tự ý thay đổi thiết kế khi thi công
-
Thuê đơn vị thiết kế – thi công uy tín
-
Giám sát chặt chiều cao trong quá trình xây dựng
Việc nắm rõ chiều cao tối đa nhà phố theo quy định là điều kiện quan trọng giúp gia chủ xây nhà đúng luật, tránh rủi ro pháp lý và đảm bảo giá trị lâu dài của công trình. Trước khi xây dựng, hãy tìm hiểu kỹ các quy định tại địa phương để quá trình thi công diễn ra thuận lợi và hợp pháp.